St. Veit im Pongau – S-SV-PA-003
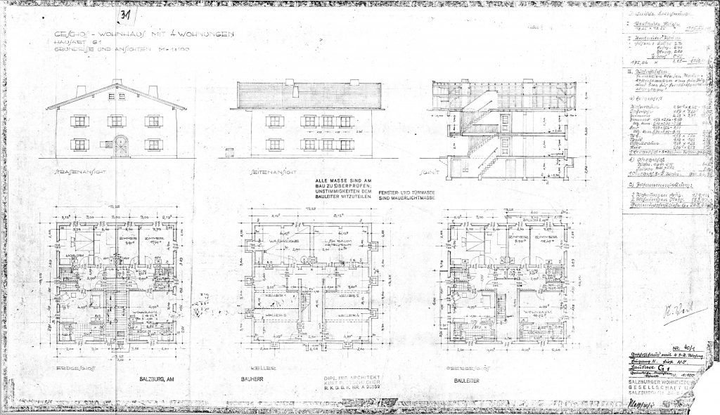
31 – Hausart G1, Geschoss-Wohnhaus mit vier Wohnungen, Grundrisse, Ansichten Schnitte, Xerox Kopie
St. Veit im Pongau – S-SV-PA-003 als PDF-Datei herunterladen
11,90 €
Zusätzliche Informationen
| datei-typ | |
|---|---|
| massstab | 1:100 |
| auftraggeber | Salzburger Wohnsiedlungsgesellschaft mbH |
| plangroesse | 79 x 46 cm |
| datum | Salzburg, 26.03.1940 |